03. sôlt wellness spa
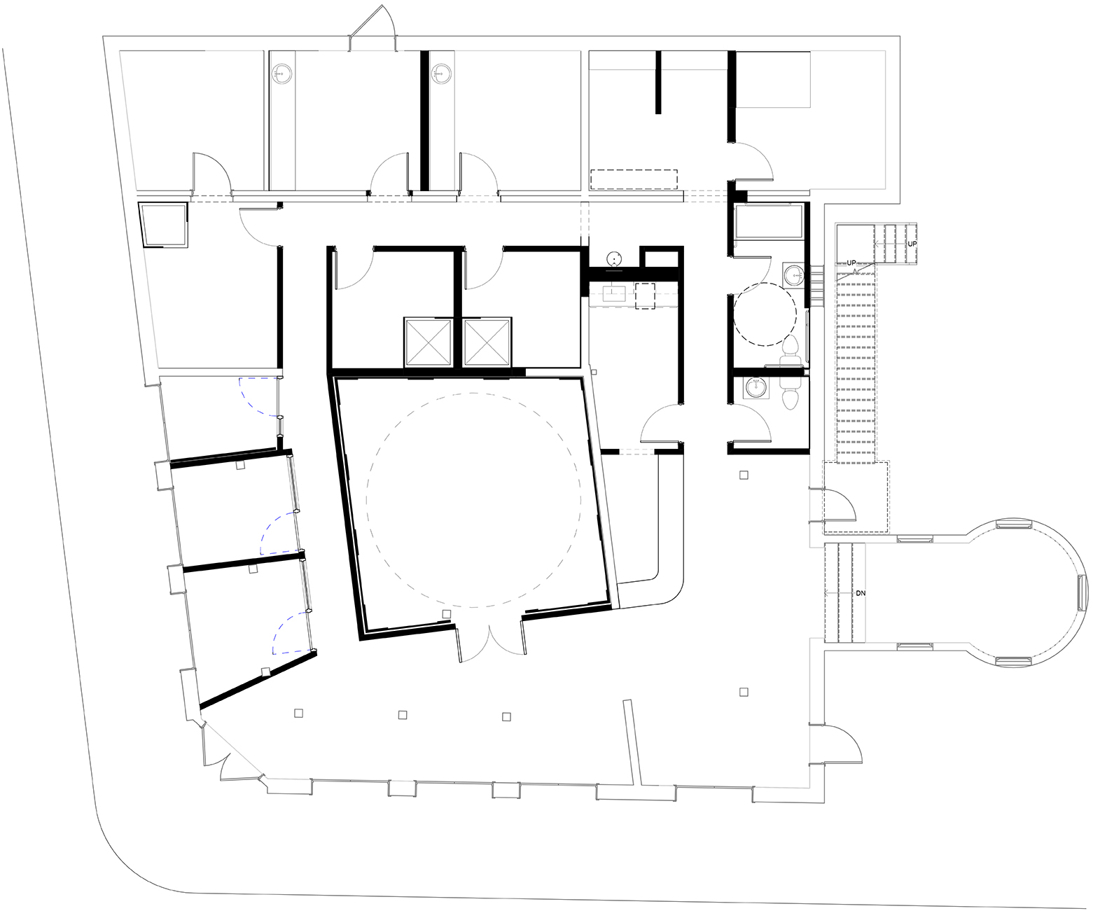
Interior Renovation and Conversion of an historic structure into a multi-treatment spa specializing in salt therapy.
Interior Renovation and Conversion of an historic structure into a multi-treatment spa specializing in salt therapy.
charleston sc
james island sc
12. multigen home
Open courtyard house situated in a forested coastal isalnd. The porches around the courtyard offer a gathering place for this three generation family.
Open courtyard house situated in a forested coastal isalnd. The porches around the courtyard offer a gathering place for this three generation family.
johns island sc
greenville sc
mount pleasant sc
charleston sc














