03. sôlt wellness spa
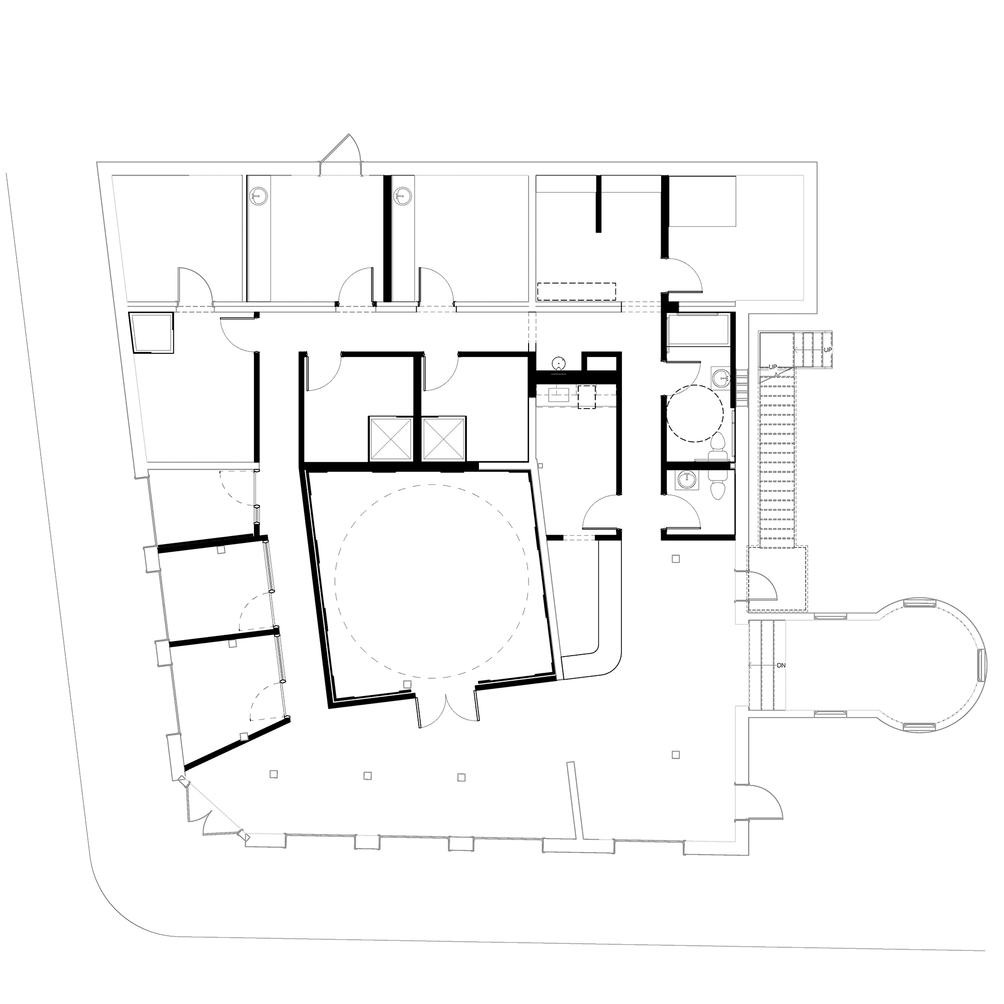
Interior Renovation and Conversion of an historic structure into a multi-treatment spa specializing in salt therapy.
Project team:
Contractor - Unique
MEP Firm - Shrout Tate Wilson
AV Consultant - Elevate Tech.
Furniture - Iola Modern
Year: 2022 - 2023
Photo: Jared Bramblett
Interior Renovation and Conversion of an historic structure into a multi-treatment spa specializing in salt therapy.
Project team:
Contractor - Unique
MEP Firm - Shrout Tate Wilson
AV Consultant - Elevate Tech.
Furniture - Iola Modern
Year: 2022 - 2023
Photo: Jared Bramblett
charleston sc
